KIA

comercial
2014

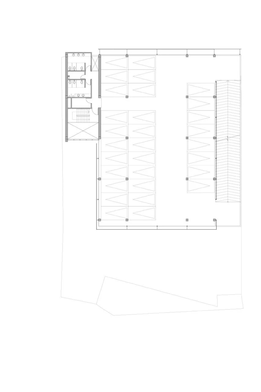
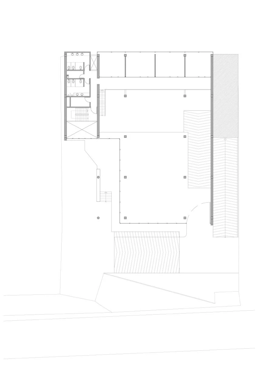
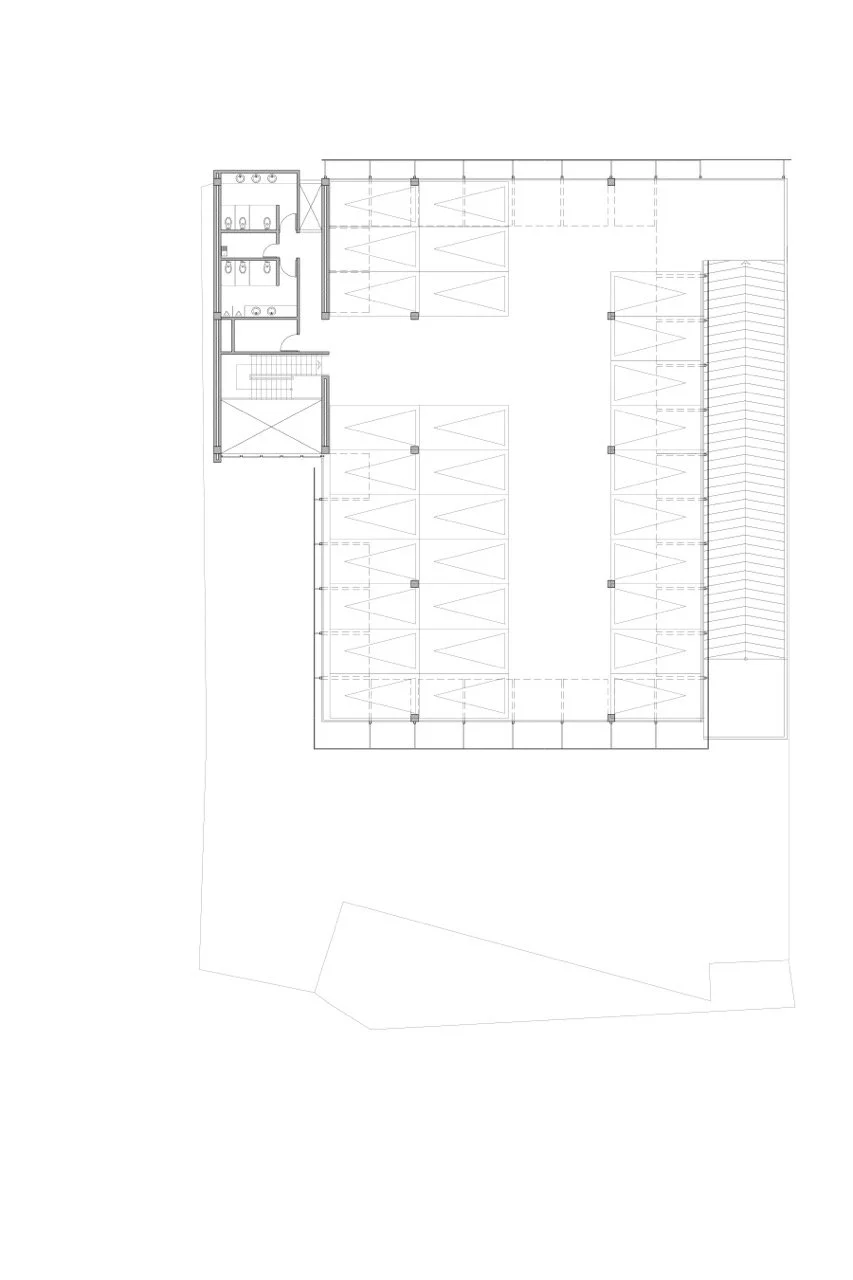
Para dar cabida al programa y a los usos propuestos de manera eficiente, se proyecta un edificio de planta rectangular con dos niveles, conectados por un núcleo de circulación vertical y una rampa vehicular exterior.

La planta baja se destina al concesionario, mientras que el nivel superior alberga el estacionamiento y el taller de servicio.

En planta baja, el área de exhibición y ventas abarca 589,23 m², complementada por espacios de circulación y servicios.

La zona de exposición se organiza en dos medios niveles, conectados por una rampa que permite tanto el paso de vehículos como de personas, aportando dinamismo al recorrido interior.

El nivel superior dispone de estacionamiento para 30 vehículos y un taller mecánico equipado con puentes, áreas de trabajo y depósitos.

Ubicado sobre una vía rápida que concentra numerosos concesionarios, el proyecto se concibe como un volumen simple revestido con láminas microperforadas, sobre las cuales se imprime la insignia de la marca.

A diferencia de sus edificaciones vecinas, el edificio transforma su apariencia del día a la noche: durante el día destaca la solidez del volumen y su imagen corporativa; durante la noche, la iluminación interior convierte la fachada en un faro urbano, visible desde la avenida.

Además de su efecto visual, esta envolvente permeable permite una ventilación cruzada y una iluminación natural eficiente en los espacios interiores.

El módulo de circulación vertical incluye una escalera, servicios sanitarios para damas y caballeros, cuarto de limpieza y depósito.

To efficiently accommodate the proposed program and uses, the project consists of a rectangular two-story building connected by a vertical circulation core and an exterior vehicle ramp.

The ground floor is dedicated to the dealership showroom, while the upper level houses the parking area and vehicle workshop.

On the ground floor, the showroom and sales area covers 589.23 m², complemented by circulation and service areas.

The exhibition space is arranged on two split levels, connected by a ramp that allows the movement of both vehicles and pedestrians, creating a dynamic interior experience.

The upper level includes parking for 30 vehicles and a workshop equipped with lifts, work areas, and storage rooms.

Located along a major roadway lined with other dealerships, the project adopts a simple volume clad in micro-perforated metal panels printed with the brand’s insignia.

Unlike neighboring buildings, it changes its appearance from day to night: during the day, the solid volume and its branding are clearly visible; at night, the backlighting dissolves the façade, turning it into an urban beacon along the avenue.

Beyond its visual impact, this permeable façade allows for natural ventilation and daylighting, enhancing environmental efficiency.

The vertical circulation module includes a staircase, restrooms for men and women, a cleaning room, and a storage area.

  • agencia concesionario KIA

  • Luis Delpino

  • comercial

    commercial

  • carrizales, miranda, venezuela

  • proyecto

    project

  • 1.445,50 m²

  • gustavo luis legórburu

    oscar capiello

Previous
Previous

casa cumbres

Next
Next

BBC merkat