agencia BNC

comercial
2017

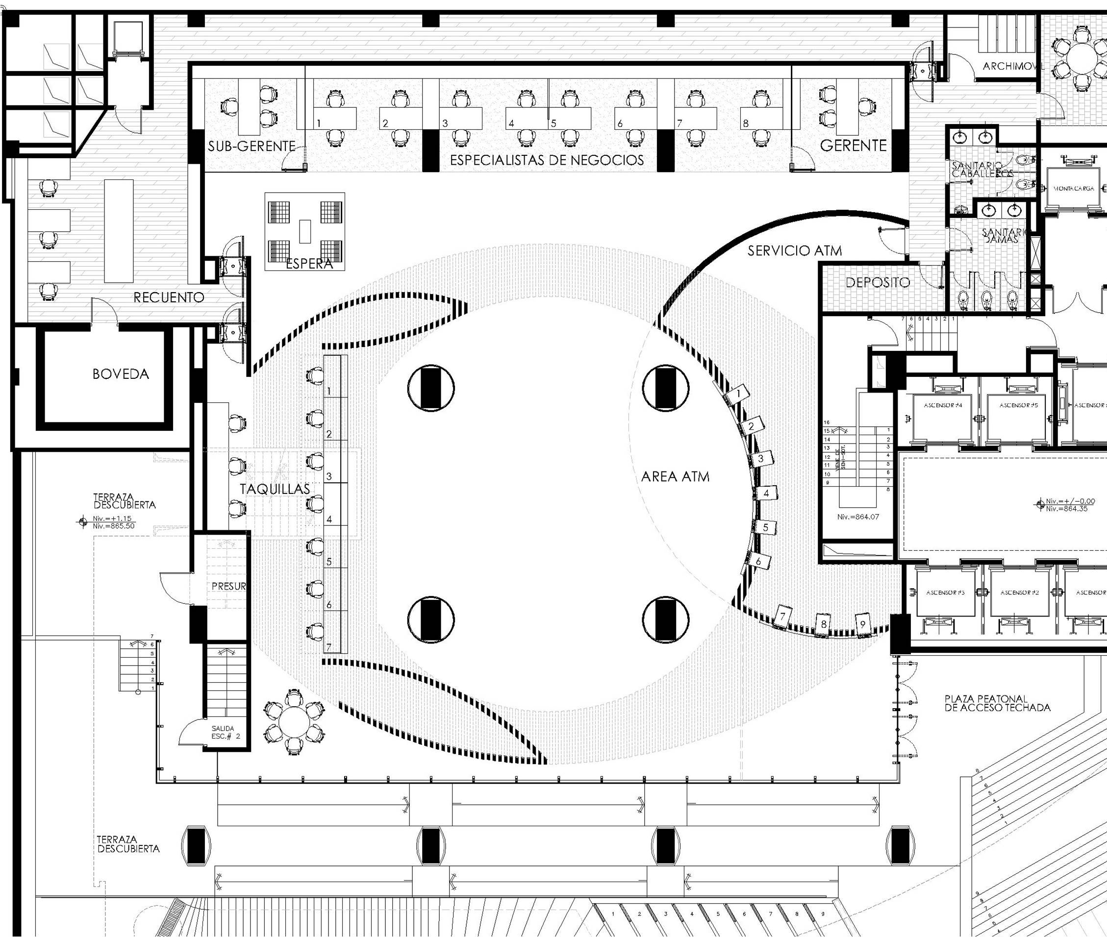
El local, de doble altura y con un frente acristalado de 25 metros sobre una avenida principal, nos plantea desde el inicio la posibilidad de incorporar un elemento distintivo que, desde el exterior, exprese claramente la identidad del banco.

Tras evaluar varias alternativas, coincidimos en utilizar la elipse del logotipo institucional como punto de partida para el diseño.

El volumen elipsoidal se eleva seis metros y está conformado por baffles de aluminio Hunter Douglas, dispuestos de forma radial para definir la geometría del conjunto.

Vacío en su interior, este espacio central funciona como una plaza de mercado desde la cual se accede a los distintos servicios financieros que ofrece el banco.

En su perímetro se ubican las taquillas, cajeros automáticos, pantallas informativas y el acceso a las oficinas de atención al público.

Los bordes de los baffles incorporan franjas de color, generando un efecto cinético inspirado en la imagen gráfica de la institución.

Esta agencia ha sido distinguida en 2024 con el Premio en la categoría Diseño Interior en la XIV Bienal de Arquitectura de Venezuela.

The double-height space, featuring a 25-meter-long glass façade along a main avenue, immediately suggests the opportunity to incorporate a distinctive element that communicates the bank’s identity from the street.

After exploring several alternatives, we chose to use the ellipse from the bank’s logo as the foundation of the design.

The ellipsoidal volume rises six meters high and is composed of Hunter Douglas aluminum baffles, arranged radially to define the geometry of the structure.

Hollow at its core, this central void functions as a marketplace-like plaza that provides access to the bank’s various financial services.

Around its perimeter are located the teller stations, ATMs, information screens, and access to the customer service offices.

The edges of the baffles are finished with colored bands, creating a kinetic effect inspired by the bank’s corporate visual identity.

This branch was awarded First Prize in the Interior Design category at the XIV Venezuelan Architecture Biennial (2024).

  • agencia bancaria BNC

  • MC arquitectos

  • comercial

    commercial

  • Campo Alegre, Caracas, Venezuela

  • completado

    completed

  • 700,00 m²

  • pedro mendoza

    oscar capiello

    gustavo luis legórburu

  • fotografía / photography

    OUTERVISION
    @outer___vision

Previous
Previous

tequechongos

Next
Next

parque profesional del este