automercados plaza

comercial
2005

La ubicación de este automercado en el último nivel de un pequeño centro comercial nos plantea un nuevo reto: ¿cómo hacerlo visible desde la calle?

Nuestra primera impresión al visitar el lugar fue mirar hacia arriba para identificar el local destinado al automercado. A través de los amplios ventanales, lo único visible era el techo.

A partir de esa observación, decidimos convertir el plafón en el elemento simbólico del proyecto: una representación visual del automercado capaz de comunicar su presencia desde el espacio público.

Para reforzar su percepción desde el exterior, inclinamos levemente el techo hacia los ventanales y propusimos un diseño con gigantografías alusivas al comercio de alimentos.

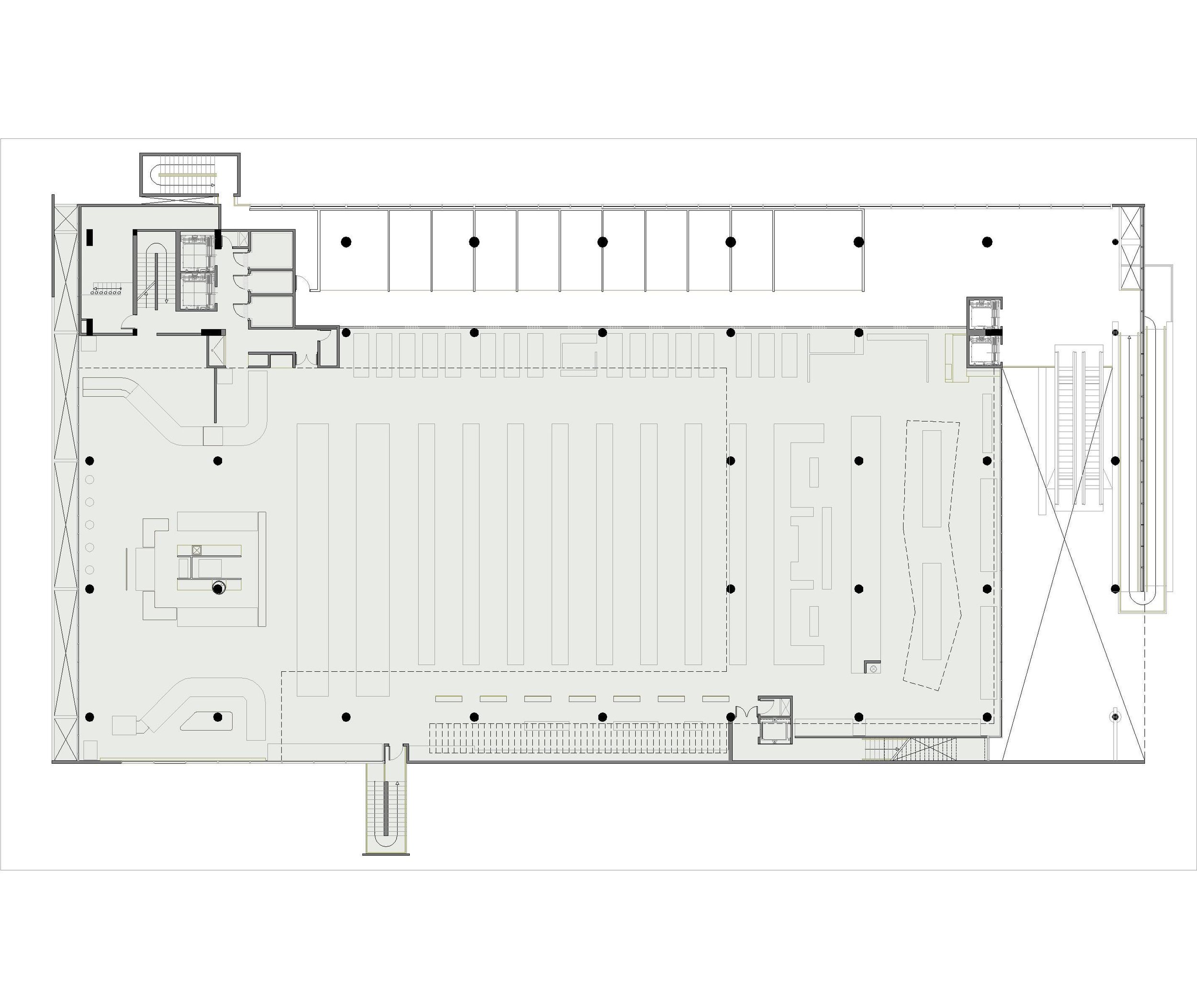
Bajo el plafón de doble altura se organizan las principales áreas de venta —charcutería, carnicería, pescadería, pastelería y autoservicio— dispuestas con una lógica inspirada en los mercados tradicionales.

Las mesas del autoservicio se orientan hacia los ventanales, aportando vitalidad a la fachada que da a la calle principal y ofreciendo, al mismo tiempo, una vista agradable del entorno urbano.

La transparencia de las fachadas se mantiene como principio fundamental, garantizando una iluminación natural abundante y, con ello, una mayor eficiencia energética.

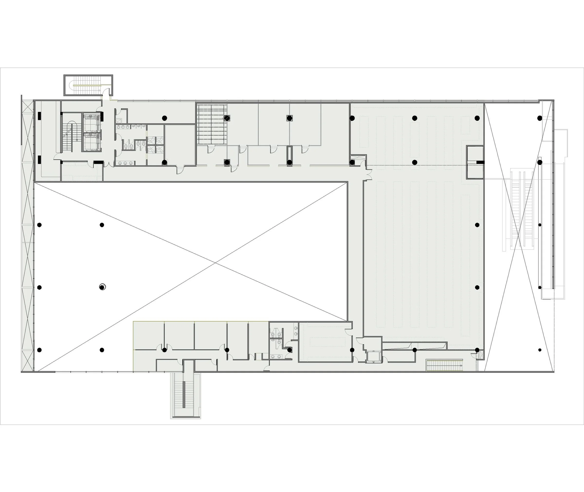
En un nivel superior se proyecta una mezzanina técnica, donde se ubican las oficinas administrativas, depósitos, cavas y áreas de preparación de alimentos.

The location of this supermarket on the top floor of a small shopping center presented a new challenge: how can we make it visible from the street?

Our first reaction upon visiting the site was to look upward, trying to locate the supermarket premises. Through the large windows, the only visible surface was the ceiling.

From that observation, we decided to transform the ceiling (plafond) into the project’s symbolic feature — a visual representation of the supermarket that communicates its presence to pedestrians below.

To enhance visibility from the street, the ceiling was slightly tilted toward the windows and designed with large-scale graphics referencing the food trade.

Beneath the double-height ceiling, the main product areas —delicatessen, butcher, fish market, bakery, and self-service— are organized following a layout inspired by traditional markets.

Self-service tables are placed along the windows to activate the façade facing the main street and to take advantage of the pleasant urban views.

Maintaining façade transparency is key to ensuring abundant natural light and improving energy efficiency.

A technical mezzanine houses the administrative offices, storage rooms, cold chambers, and food preparation areas.

presentación
  • automercados plaza

  • automercados plaza

  • comercial

    commercial

  • colinas de valle arriba, caracas

  • completado

    completed

  • 3.180,00 m²

  • legórburu&gonzález arquitectos

    luisa gonzález
    gustavo luis legórburu

  • maya suárez

    daniel saint-aubyn

Previous
Previous

parque profesional del este

Next
Next

casa cumbres